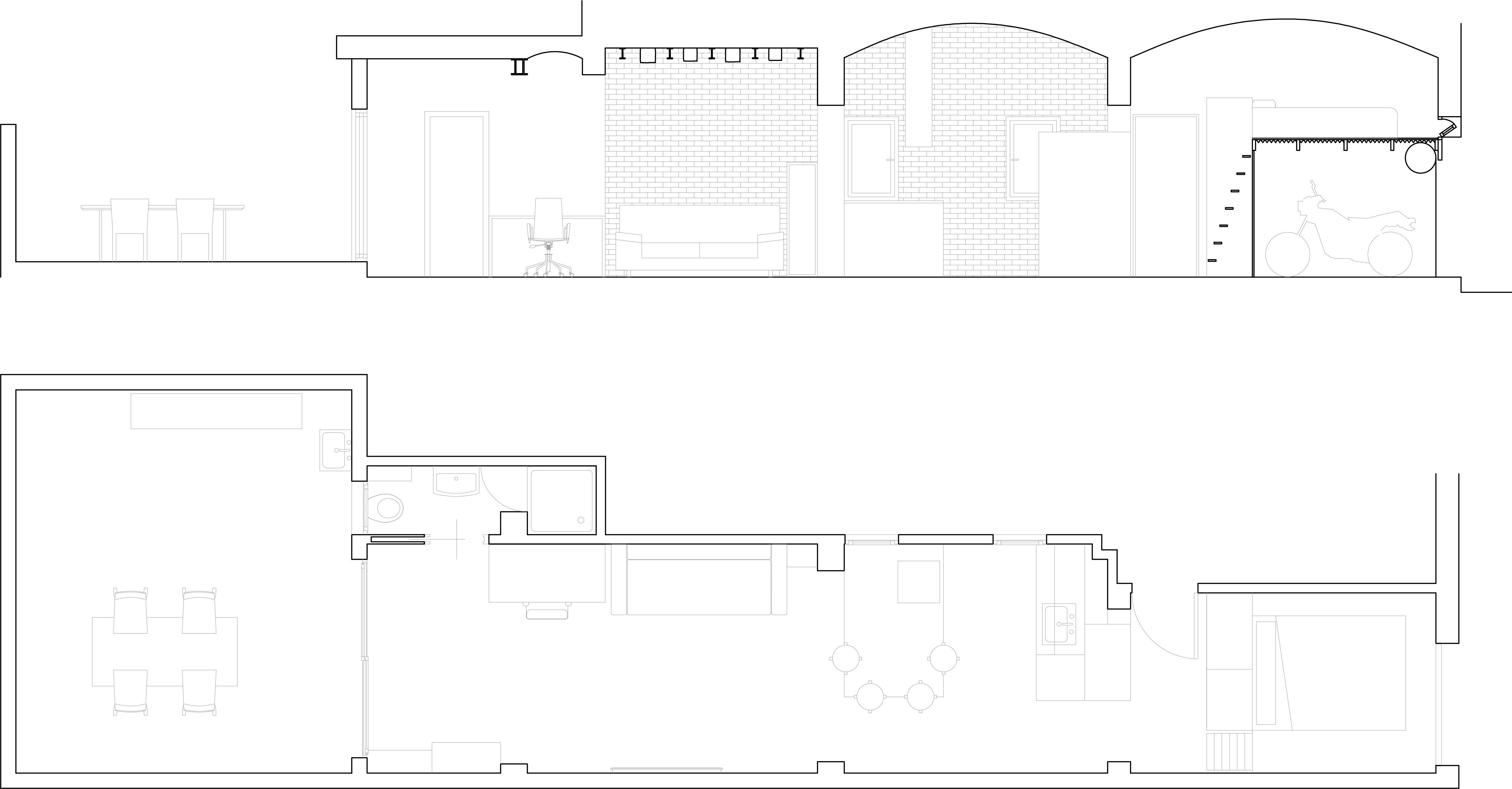
Categorías: Residencial / Plurifamiliar
Molins de Rei / 2018 / 40 m2 / 15.000 €
Por favor, lee y acepta nuestra política de cookies.
¿Hablamos?